| Widerrufsbelehrung Druckansicht |
| |
Objektnummer: |
ETW0468 |
Objekt: | Moderne Wohnanlage in Ellingen Stilvolles Wohnen mit Weitblick im Amselweg 6 A, 6 B und 6 C
Die hochwertig und stilvoll gestaltete Wohnanlage am Amselweg in Ellingen umfasst insgesamt 10 Wohneinheiten, verteilt auf drei attraktive Häuser. Dabei werden alle Wohnungen auf lediglich zwei Geschossen realisiert ein Konzept, das sowohl architektonisch als auch wohnlich überzeugt.
Durchdachtes Wohnkonzept mit exklusivem Garten oder Penthouse-Charakter
Die Erdgeschosswohnungen verfügen jeweils über einen privaten Gartenbereich zur alleinigen Nutzung ein echtes Highlight für Naturliebhaber, Familien oder Menschen mit Wunsch nach mehr Privatsphäre.
Die Wohnungen im Obergeschoss hingegen werden im eleganten Penthouse-Stil errichtet und bieten lichtdurchflutete Räume durch großflächige Fensterfronten sowie eine offene, moderne Architektur.
Alle Wohnungen verfügen über sonnige Terrassen oder Balkone mit idealer Südausrichtung und Sonne von morgens bis abends. Die leichte West-Hanglage des Grundstücks eröffnet einen beeindruckenden Blick über die Stadt Ellingen hinweg besonders am Abend zeigt sich hier ein traumhafter Sonnenuntergang in seiner ganzen Pracht. Ein Wohngefühl, dass man so in unserer Region nicht oft findet und auch an Urlaubsorten erinnert.
Attraktiv für alle Lebensphasen
Das barrierefreie Wohnkonzept mit Wohnflächen zwischen ca. 64 m² und knapp 116 m² spricht eine breite Zielgruppe an: junge Paare, Singles, Familien und Senioren finden hier gleichermaßen ein stilvolles und nachhaltiges Zuhause.
Die überschaubare Einteilung in zwei Gebäude mit je vier Wohneinheiten sowie ein Haus mit lediglich zwei Einheiten schafft ein angenehmes, nachbarschaftliches Wohnklima und grenzt sich bewusst von anonymen Großanlagen ab.
Licht, Luft und Raum durchdacht bis ins Detail
Alle Wohnungen sind mindestens zu drei Seiten von Tageslicht durchflutet ein seltenes Qualitätsmerkmal in der heutigen Architektur. |
Lage: | Ellingen und die Region - Willkommen im Herzen Mittelfrankens
Eine charmante Stadt im Landkreis Weißenburg-Gunzenhausen, besticht durch ihre historische Altstadt mit beeindruckender Barockarchitektur und einer hohen Lebensqualität. Geprägt durch das imposante Deutschordensschloss, bietet Ellingen eine perfekte Kombination aus Tradition und Moderne.
Die Stadt liegt im idyllischen Bayern eingebettet zwischen Altmühltal und Fränkischem Seenland profitiert sie von ihrer idealen Lage zwischen den Metropolregionen Nürnberg, Ingolstadt und Augsburg. Dank des Bahnhofs mit direkter Anbindung in genau diese Städte sowie dem nahegelegenen Bundesstraßenkreuz (B2 und B13) ist man sowohl regional als auch überregional hervorragend vernetzt.
Nur wenige Minuten entfernt befindet sich die große Kreisstadt Weißenburg i. Bay. mit einer Vielzahl an Einkaufs- und Freizeitmöglichkeiten, weiterführenden Schulen, kulturellen Einrichtungen und einem gut ausgebauten Gesundheitswesen. Ein echter Pluspunkt ist zudem die Nähe zum Fränkischen Seenland insbesondere zum Großen und Kleinen Brombachsee. Ob Wassersport, Radfahren, Wandern oder einfach nur Entspannen am Seeufer hier beginnt Freizeit direkt vor der Haustür.
Die Umgebung bietet darüber hinaus eine hohe Lebensqualität mit reicher Geschichte von römischen Kastellen bis hin zu barocken Schlossanlagen und einem aktiven Vereins- und Gemeindeleben. Ellingen ist der perfekte Ausgangspunkt für Berufspendler, Familien und Ruhesuchende gleichermaßen.
|
Ausstattung: | Hochwertige Architektur in MASSIVBAUWEISE
Die gesamte Anlage wird in solider Massivbauweise errichtet INKLUSIVE aller Wohnungstrennwände sowie der Innenwände innerhalb der Wohnungen.
Diese Bauweise kommt bei anderen Anbietern immer mehr ins Hintertreffen aber sorgt für eine ausgezeichnete Schall- und Wärmedämmung und steht darüber hinaus auch für sehr hohe Langlebigkeit und Wertbeständigkeit.
Das Ganze in Kombination mit einem hellen, offenen Wohnkonzept mit moderner, energieeffizienter Bauweise sowie langlebiger Ausstattung.
Damit entsteht ein Neubauprojekt, das gleichermaßen wertbeständig, komfortabel und kosteneffizient ist.
Komfort inklusive
In den beiden größeren Häusern wird jeweils ein Aufzug installiert, der Sie bequem von der Tiefgarage bis zu Ihrer Wohnung und den großzügig bemessenen Kellerräumen bringt.
Ausstattung im Überblick:
Nachhaltige Energieversorgung über Wärmepumpe und Photovoltaikanlage
Effizienzstandard KfW 55 EE (EnEV 2023) für energetisch effizientes und ökologisches Wohnen
Massivbauweise inkl. Innenwände !
Aufzuganlage über alle Geschosse
Fußbodenheizung separat steuerbar in allen Wohnräumen
Elektrische Rollläden in allen Wohnräumen
Dreifach verglaste Kunststofffenster
Separater Kellerraum zur Wohnung
Waschmaschinen- und Trockneranschluss im Kellerraum
Bewegungsmelder im Innen- und Außenbereich
Markenausstattung im Badezimmer und Sanitärbereich
ebenerdige, barrierefreie und altersgerechte Duschen
umfangreiche Elektroinstallation mit Datendosen, Vorbereitung Unterverteilung Wallbox etc.
uvm. |
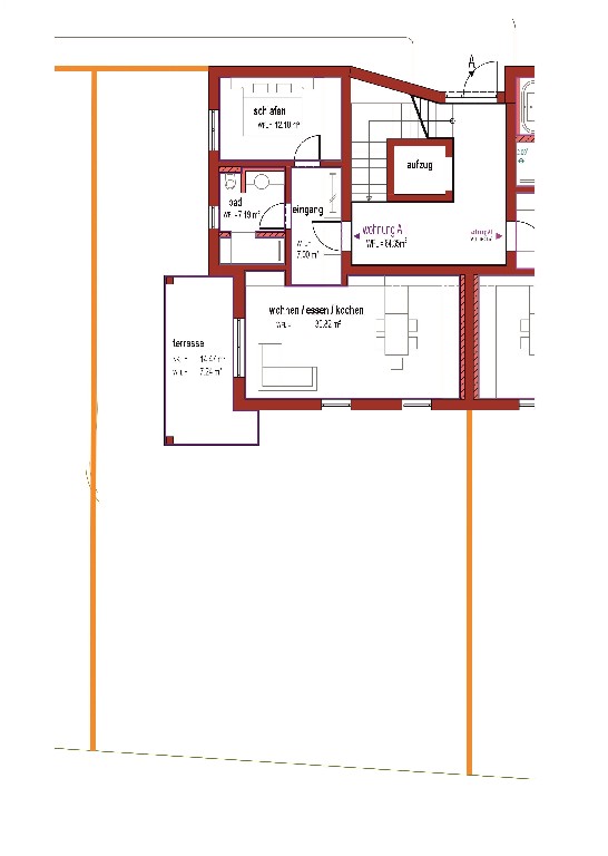
Sonstiges: | - Wfl. ca. 113,70 m², 4 Zimmer, Küche, Abst./Speis, Bad/DU/WC, Gäste-WC, Terrasse mit eigenem Gartenanteil
- Wärmepumpe
|
Ort: |
91792 Ellingen |
Wohnfläche: |
ca. 113,70 m² |
Zimmer: |
4,00 |
Baujahr: |
2025 |
Energieausweis: |
Bedarf |
Endenergiebedarf: |
23,10 kWh / (m² * a) |
Effizienzklasse: |
A+ |
Kaufpreis: |
519.000,00 € |