
Objektnummer: |
ETW0482 |
Objekt: | Moderne Wohnanlage in Ellingen Stilvolles Wohnen mit Aussicht im Amselweg 6 A, 6 B und 6 C Im Amselweg in Ellingen entsteht eine hochwertige Wohnanlage mit 10 stilvollen Wohneinheiten, verteilt auf drei ansprechende Gebäude. Das durchdachte Konzept mit nur zwei Geschossen pro Haus vereint architektonische Eleganz mit hohem Wohnkomfort. Die hier angebotene Erdgeschosswohnung bietet dabei einen privaten Gartenbereiche zur alleinigen Nutzung ideal für Naturliebhaber, Familien oder Personen, die Privatsphäre schätzen. Dabei ist die Wohnung mit einer sonnigen Terrassen in Süd-/Westausrichtung, bei der Sie den ganzen Tag über Sonne genießen. Die westliche Hanglage des Areals ermöglicht einen beeindruckenden Blick über Ellingen besonders abends entfaltet sich hier ein malerischer Sonnenuntergang. Für jede Lebensphase das passende Zuhause. Das barrierefreie Wohnkonzept mit Wohnfläche von ca. 64 m² richtet sich an eine breite Zielgruppe: Paare, Singles und Senioren finden hier gleichermaßen ein stilvolles und zukunftssicheres Zuhause. Die überschaubare Aufteilung mit zwei Gebäuden zu je vier Einheiten und einem Gebäude mit zwei Einheiten fördert ein angenehmes nachbarschaftliches Klima und grenzt sich bewußt von größeren anonymen Wohnanlagen ab. Licht, Luft und Raum bis ins Detail durchdacht! Die Wohnung ist dreiseitig mit Tageslicht versorgt ein außergewöhnliches Merkmal der modernen Architektur. Die gesamte Anlage wird in solider Massivbauweise realisiert, inklusive aller Innen- und Wohnungstrennwände. Dieses Qualitätsmerkmal hebt die Wohnanlage deutlich von anderen Angeboten ab und bietet exzellente Schall- und Wärmedämmung. In Kombination mit einem hellen, offenen Wohnkonzept und einer energieeffizienten Bauweise entsteht ein wertbeständiges, komfortables und kosteneffizientes Neubauprojekt. In dem Haus sorgt ein Aufzug für komfortablen Zugang zu den Wohnungen, den Waschräumen und großzügigen Kellerräumen. |
Lage: | Ellingen und die Region Willkommen im Herzen Mittelfrankens Ellingen, eine charmante Stadt im Landkreis Weißenburg-Gunzenhausen, besticht durch ihre historische Altstadt, die beeindruckende Barockarchitektur und eine hohe Lebensqualität. Das imposante Deutschordensschloss prägt das Stadtbild und vereint Tradition mit Moderne. Die idyllische Lage zwischen Altmühltal und Fränkischem Seenland sowie die Nähe zu den Metropolregionen Nürnberg, Ingolstadt und Augsburg machen Ellingen zu einem attraktiven Wohnort. Dank des Bahnhofs mit direkten Verbindungen und dem nahegelegenen Bundesstraßenkreuz (B2 und B13) ist die Stadt sowohl regional als auch überregional hervorragend vernetzt. Die große Kreisstadt Weißenburg mit vielfältigen Einkaufs- und Freizeitmöglichkeiten, weiterführenden Schulen, kulturellen Einrichtungen und einem gut ausgebauten Gesundheitswesen ist nur wenige Minuten entfernt. Das Fränkische Seenland mit dem Großen und Kleinen Brombachsee bietet zahlreiche Freizeitmöglichkeiten direkt vor der Haustür. Die Wohnlage, begehrte Adresse im Amselweg Der Amselweg ist eine außergewöhnlich attraktive und begehrte Wohnlage in Ellingen. Gepflegte Einfamilienhäuser und großzügige Gärten prägen das gehobene Wohnambiente. Schule, Sportanlage und Supermarkt sind nur wenige Schritte entfernt ideal für Familien und alle, die kurze Wege schätzen. Das charmante Zentrum von Ellingen ist bequem zu Fuß erreichbar und bietet neben dem historischen Stadtkern zahlreiche Einrichtungen des täglichen Bedarfs: Allgemeinarzt, Zahnarzt, Apotheke, Bäckerei, Metzgerei, Floristikgeschäft, Cafés und diverse Restaurants finden Sie hier. Das Kulturzentrum Ellingen sowie das prachtvolle Residenzschloss mit Bräustüberl und Schlossbrauerei verleihen dem Ort ein ganz besonderes Flair. Der örtliche Bahnhof ist ebenfalls in wenigen Minuten erreichbar. Der Amselweg bietet ein rundum stimmiges Umfeld: zentral, ruhig, familienfreundlich und mit einer hervorragenden Infrastruktur. |
Ausstattung: | Ausstattung im Überblick: - Nachhaltige Energieversorgung durch Wärmepumpe und Photovoltaikanlage - Effizienzstandard KfW 55 EE (EnEV 2023) für ökologisches Wohnen - Massivbauweise inkl. aller Innenwände - Aufzug über alle Stockwerke - Separat steuerbare Fußbodenheizung in allen Wohnräumen - Elektrische Rollläden - Dreifachverglaste Kunststofffenster - Separater Kellerraum - Waschmaschinen- und Trockneranschlüsse im Keller - Innen- und Außenbereich mit Bewegungsmeldern - Hochqualitative Ausstattung in den Bädern - Barrierefreie, altersgerechte Duschen - Umfangreiche Elektroinstallation inkl. Wallbox-Vorbereitung |
Sonstiges: |
|
Ort: |
91792 Ellingen |
Wohnfläche: |
ca. 64,35 m² |
Zimmer: |
2,00 |
Baujahr: |
2025 |
Energieausweis: |
Bedarf |
Endenergiebedarf: |
23,10 kWh / (m² * a) |
Effizienzklasse: |
A+ |
Kaufpreis: |
295.000,00 € |
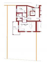
![]() | ![]() Essen-Kochen-Wohnen |
![]() Schlafen | ![]() Bad/DU/WC |
![]() Wohnungsgrundriss |
Widerrufsrecht
Sie haben das Recht, binnen vierzehn Tagen ohne Angabe von Gründen diesen Vertrag zu widerrufen.
Die Widerrufsfrist beträgt vierzehn Tage ab dem Tag des Vertragsabschlusses.
Um Ihr Widerrufsrecht auszuüben, müssen Sie uns (Immobilien Plößl Am alten Rathaus GmbH & Co. KG, Luitpoldstraße 2,
91781 Weißenburg, Telefon 09141 / 86 56 - 0, Telefax: 09141 / 86 56 50, info@immobilien-ploessl.de) mittels einer eindeutigen Erklärung (z.B. ein mit der Post versandter Brief, Telefax oder E-Mail) über Ihren Entschluss, diesen Vertrag zu widerrufen, informieren.
Zur Wahrung der Widerrufsfrist reicht es aus, dass Sie die Mitteilung über die Ausübung des Widerrufsrechts vor Ablauf der Widerrufsfrist absenden.
Folgen des Widerrufs
Wenn Sie diesen Vertrag widerrufen, haben wir Ihnen alle Zahlungen, die wir von Ihnen erhalten haben, einschließlich der Lieferkosten (mit Ausnahme der zusätzlichen Kosten, die sich daraus ergeben, dass Sie eine andere Art der Lieferung als die von uns angebotene, günstigste Standardlieferung gewählt haben), unverzüglich und spätestens binnen vierzehn Tagen ab dem Tag zurückzuzahlen, an dem die Mitteilung über Ihren Widerruf dieses Vertrags bei uns eingegangen ist. Für diese Rückzahlung verwenden wir dasselbe Zahlungsmittel, das Sie bei der ursprünglichen Transaktion eingesetzt haben, es sei denn, mit Ihnen wurde ausdrücklich etwas anderes vereinbart; in keinem Fall werden Ihnen wegen dieser Rückzahlung Entgelte berechnet.
Haben Sie verlangt, dass die Dienstleistungen während der Widerrufsfrist beginnen sollen, so haben Sie uns einen angemessenen Betrag zu zahlen, der dem Anteil der bis zu dem Zeitpunkt, zu dem Sie uns von der Ausübung des Widerrufsrechts hinsichtlich dieses Vertrags unterrichten, bereits erbrachten Dienstleistungen im Vergleich zum Gesamtumfang der im Vertrag vorgesehenen Dienstleistungen entspricht.